
156 3820 6333
一、斗式提升機特點與用途
該系列斗式提升機具有占地面積小,提升高度高,輸送量大,動力消耗低和密封性好等特點。適用于作化肥,糧食、食品、飼料、礦山工業等粒狀和粉狀物料垂直輸送設備。
驅動功率小,采用流入式喂料、誘導式卸料、大容量的料斗密集型布置.在物料提升時幾乎無回料和挖料現象,因此無效功率少。
提升范圍廣,這類提升機對物料的種類、特性要求少,不但能提升一般粉狀、小顆粒狀物料,而且可提升磨琢性較大的物料.密封性好,環境污染少。
運行可靠性好,先進的設計原理和加工方法,保證了整機運行的可靠性,無故障時間超過2萬小時。提升高度高.提升機運行平穩,因此可達到較高的提升高度。
使用壽命長,提升機的喂料采取流入式,無需用斗挖料,材料之間很少發生擠壓和碰撞現象。本機在設計時保證物料在喂料、卸料時少有撒落,減少了機械磨損。
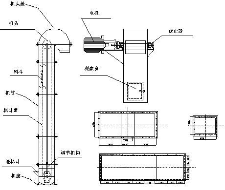
二、設備結構及外形尺寸

1、機腳;2、進料斗;3、機座;4、機筒;5、調節機構;6、料斗帶;7、料斗;8、觀察窗;9、機頭;10、機頭蓋;11、逆止器;
三、斗式提升機工作原理
該系列斗式提升機適用于輸送粉狀、粒狀及小塊狀的無磨琢及磨琢性小的物料。牽引件用合金鋼高度圓環鏈。中部機殼分單、雙通道兩種形式為機內重錘箱恒力
自動張緊。鏈輪采用可換輪緣組合式結構。使用壽命長,輪緣更換工作簡便。下部采用重力自動張緊裝置,能保持恒定的張緊力,避免打滑或脫鏈,同時料斗遇到偶
然因素引起的卡殼現象時有容讓性,能夠有效地保護下部軸等部件。該斗式提升機適用于輸送堆積密度小于1.5t/m3易于掏取的粉狀、粒狀、小塊狀的
底磨琢性物料。如煤、水泥、碎石、砂子、化肥、糧食等。該機用于各種散狀物料的垂直輸送。適用于輸送粉狀、粒狀、小塊狀物料,物料溫度在250℃以下。料
斗把物料從下面的儲藏中舀起,隨著輸送帶或鏈提升到頂部,繞過頂輪后向下翻轉,
斗式提升機將物料傾入接受槽內。帶傳動的斗式提升機的傳動帶一般采用橡膠帶,裝在下或上面的傳動滾筒和上下面的改向滾筒上。鏈傳動的斗式提升機一般裝有兩
條平行的傳動鏈,上或下面有一對傳動鏈輪,下或上面是一對改向鏈輪。斗式提升機一般都裝有機殼,以防止斗式提升機中粉塵飛揚。
四、技術參數
| 型號 | Th315 | Th400 | Th500 | Th630 | |||||||||
| 料斗形式 | ZH | SH | ZH | SH | ZH | SH | ZH | SH | |||||
| 輸送量 | 35 | 59 | 58 | 94 | 73 | 118 | 114 | 185 | |||||
| 斗容 | 3.75 | 6 | 5.9 | 9.5 | 9.3 | 15 | 14.6 | 23.6 | |||||
| 斗距 | 512 | 688 | |||||||||||
| 圓鋼直徑×節距 | Φ18×64 | Φ12.1×86 | |||||||||||
| 單條鏈強度 | 320 | 480 | |||||||||||
| 單位長度牽引重量 | 25.64 | 26.58 | 31.0 | 31.9 | 41.5 | 44.2 | 49.0 | 52.3 | |||||
| 傳動齒輪轉速 | 42.5 | 37.6 | 35.8 | 31.8 | |||||||||
| 輸送物料粒度 | 35 | 40 | 50 | 60 | |||||||||
| 料斗運行速度 | 1.4 | 1.5 | |||||||||||
| 注 | ZH型代表中深斗 | SH型代表中深斗 | |||||||||||